Appartamento Borno – BorMQ
Vendesi nuovissimo appartamento a Borno in consegna per dicembre 2025.…
209.000€
Via Sovea, 26, 25040 Cividate Camuno BS, Italia
Vendita
45.000€





VENDESI APPARTAMENTO A CIVIDATE CAMUNO: SI TRATTA DI UNA CASA INDIPENDENTE DISPOSTA SU TRE LIVELLI E COMPOSTA DA TRE APPARTAMENTI ATTUALMENTE DA RISTRUTTURARE O AL RUSTICO CON CANTINE AL PIANO INTERRATO.
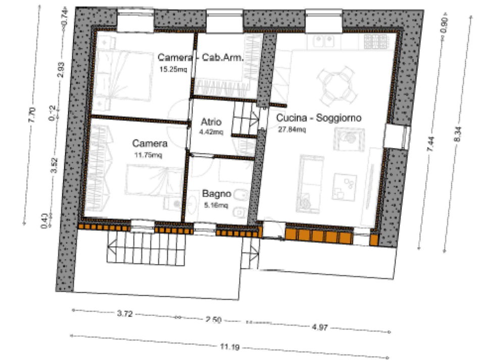
PIANO RIALZATO MQ 88 – POSSIBILITA’ DI REALIZZARE UN SOGGIORNO CON ANGOLO COTTURA, DISIMPEGNO, DUE CAMERE MATRIMONIALI, BAGNO E BALCONE. € 35.000;
“PIANO PRIMO MQ 88 – POSSIBILITA’ DI REALIZZARE UN SOGGIORNO CON ANGOLO COTTURA, DISIMPEGNO, DUE CAMERE MATRIMONIALI, BAGNO E BALCONE . € 45.000;”
PIANO SECONDO/MANSARDATO CON TRAVI IN LEGNO A VISTA MQ 88 – POSSIBILITA’ DI REALIZZARE COME I PRECEDENTI. € 55.000
CANTINA 1 MQ 10,52 € 3.000
CANTINA 2 MQ 18,16 € 5.000
CANTINA 3 MQ 40,70 € 10.000.
L’ACQUISTO DI UN APPARTAMENTO COMPORTA L’ACQUISTO ANCHE DI 1 DELLE TRE CANTINE.
ACQUISTO COMPLETO € 150.000
TETTO E FACCIATE DI NUOVA REALIZZAZIONE (SETTEMBRE 2020)
Vendesi nuovissimo appartamento a Borno in consegna per dicembre 2025.…
209.000€
**Appartamento in Vendita a Rogno – Bergamo** Scopri questo splendido…
150.000€
Porzione di casa Ossimo – Oss125